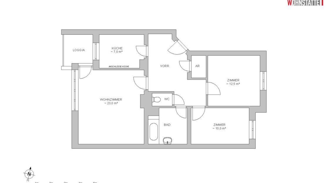
Diese schöne 3-Raumwohnung mit praktischen Extras wie Balkon und Tiefgaragenplatz gliedert sich in
Vorzimmer, Küche mit Essbereich, 3 Zimmer, Bad mit Badewanne, WC.
Ein Abstellraum und das dazugehörige Kellerabteil bieten zusätzlichen Stauraum.
Heizung und Warmwasser ist in der Miete NICHT enthalten und wird vom Heizungsunternehmen separat abgerechnet.
Diese Wohnung ist als Hauptwohnsitz zu nutzen.
Diese Wohnung wurde mit Fördermitteln des Landes OÖ errichtet, daher gelten die Richtlinien der OÖ Wohnbauförderung.